
Property Overview:
• Asset Type: Commercial/Retail Building
• Tenancy: Fully Leased – Business in Operation
• Income Stream: Established
• Lease Status: Tenant in Place
• Zoning: Commercial (subject to council)
Key Investment Highlights:
• Tenanted Investment Property
• Functional Business Operating On-Site
• Consistent Rental Income
• Investor-Friendly Asset
• Low Vacancy Risk (Established Tenant)
Suited For:
✔️ Investors – Strong in-situ income and attractive yield
✔️ SMSF Buyers – Stable cashflow with tenant in place
✔️ Commercial Buyers – Entry-level commercial investment
✔️ Yield-Focused Portfolios – Solid return profile
The Asset:
This is a rare opportunity to secure a fully leased commercial property with a functional business operating on-site, delivering immediate income from day one.
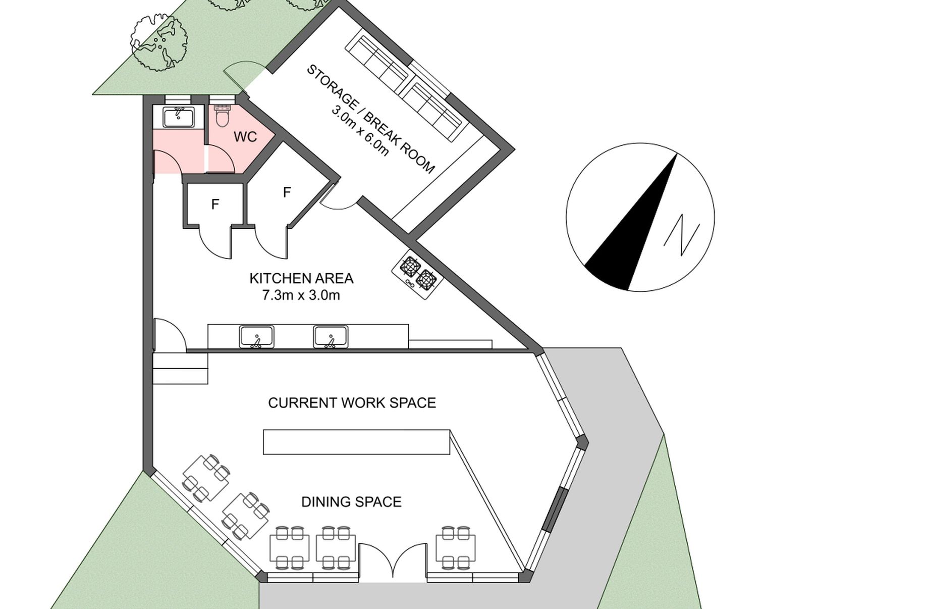
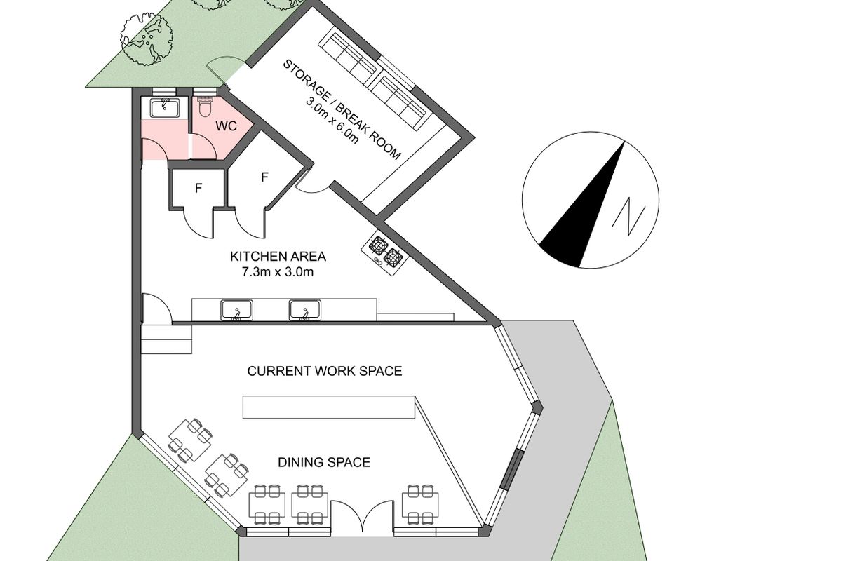
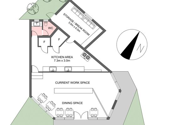
The property is being offered with the tenant in place, providing a seamless transition for investors seeking a set-and-forget style asset with strong rental performance. The building is well suited to its current use, with a practical layout that supports ongoing commercial operations.
With a proven income stream already established, this investment removes the uncertainty of vacancy and lease-up, making it an ideal option for buyers looking to secure reliable cashflow in a tightly held commercial market.
Investment Performance:
• Current Rent: $2,574 per month
• Annual Income: $30,888 p.a. (approx.)
• Estimated Gross Yield: Approx. 4.96% – 5.81% (based on advertised price range)
This level of return positions the property as a strong-performing commercial investment, particularly attractive in the current interest rate environment.
Location & Commercial Appeal:
Situated in a well-established area with ongoing local activity, this property benefits from:
• Established local trade
• Consistent foot and vehicle traffic (subject to location)
• Surrounding residential and commercial catchment
• Proven demand for local services
Why This Investment?
With a tenant already in place and income secured, this is a low-friction commercial acquisition offering:
✔️ Immediate rental return
✔️ Reduced vacancy risk
✔️ Strong yield profile
✔️ Long-term commercial upside
The Realest Estate – By Families, For Families.